amler-LS – promo

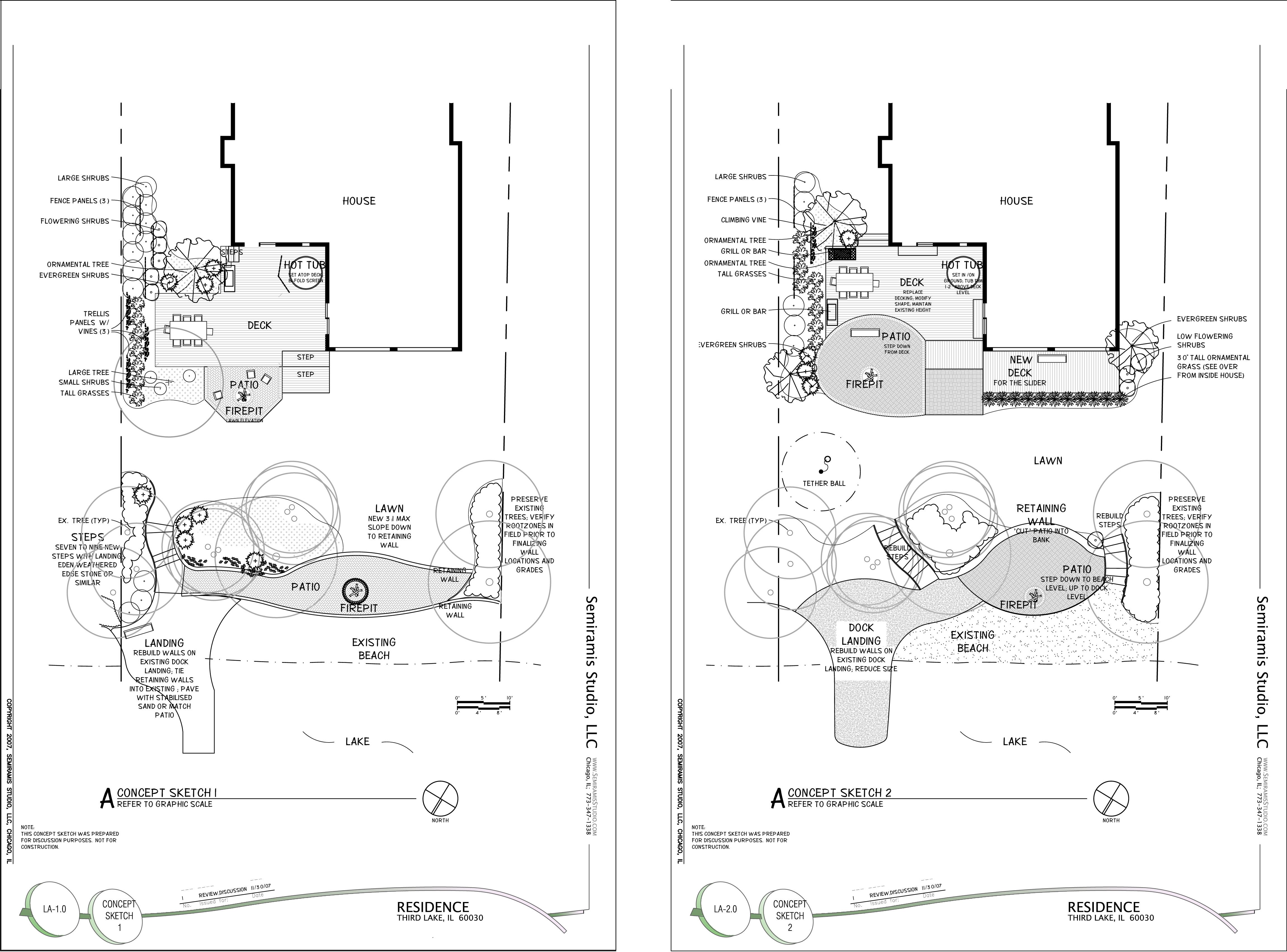
Two options the Studio prepared for a residential client on an inland lake.

Leave a comment