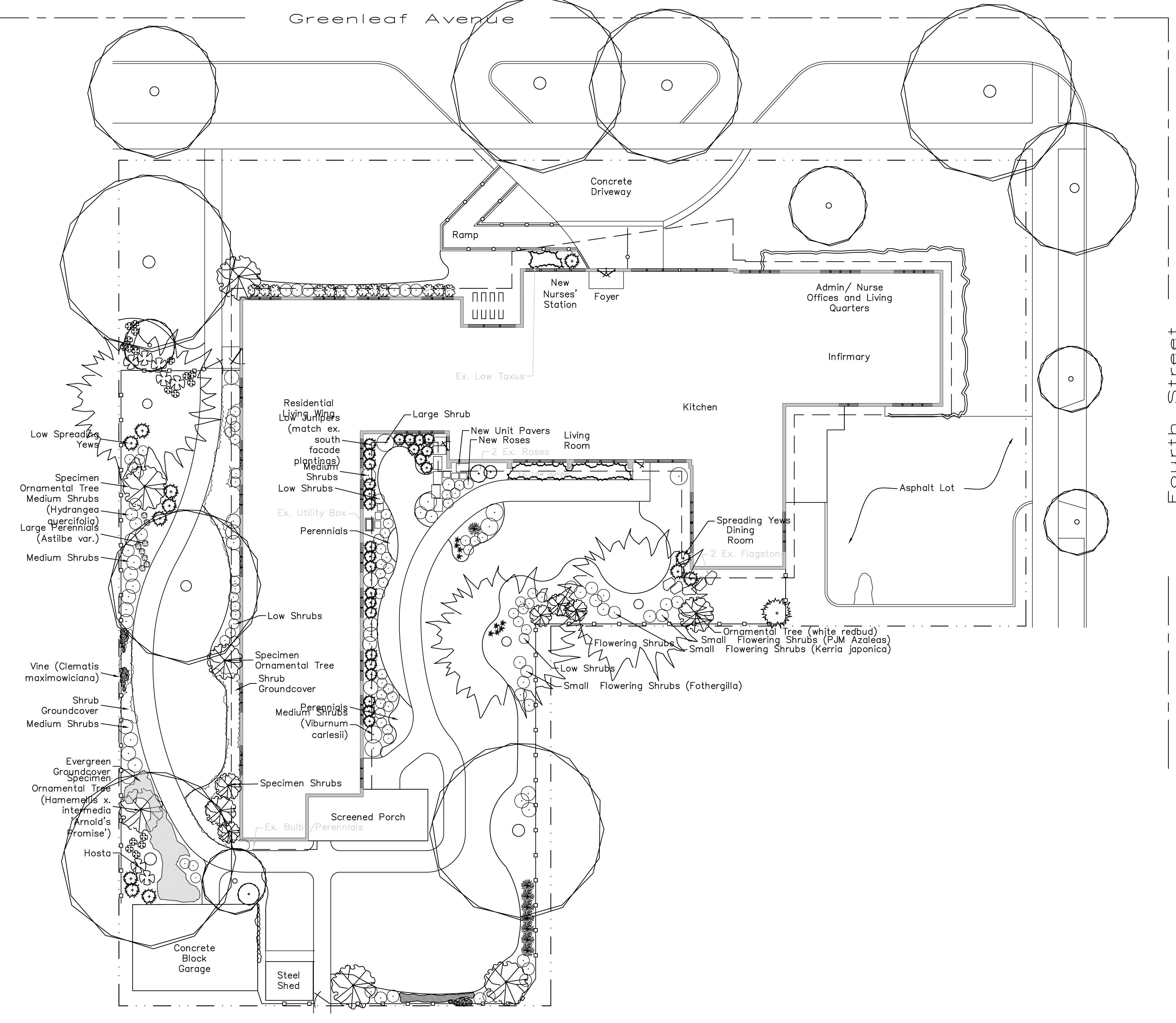
Previous Image Next Image bahh_conc promo A landscape plan for a private geriatric home Alexia worked on in the 90’s.